MENU
Trang chủ
Giới thiệu
Hồ sơ năng lực
Thiết kế
Dự án thi công
Xây nhà trọn gói
Cải tạo nhà trọn gói
Báo giá
Tư vấn xây dựng
Liên hệ
Xây Dựng Hùng Anh
Xây nhà ở trọn gói – sửa chữa và cải tạo nhà trọn gói tại Hà Nội
Tư Vấn 24/7
091.15.44444
Trang chủ
Giới thiệu
Hồ sơ năng lực
Thiết kế
Dự án thi công
Xây nhà trọn gói
Cải tạo nhà trọn gói
Báo giá
Tư vấn xây dựng
Liên hệ
Tìm kiếm cho:
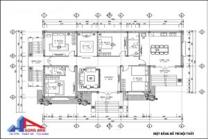
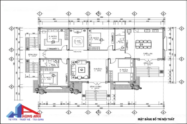
thiet ke 4 phong ngu
2:20 chiều 05/07/2024
3 lượt xem
Tweet
error:
Content is protected !!